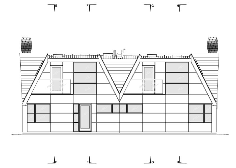
These houses sit in an eclectic yet vernacular, street scene. Convincing the local authority of the appropriateness of two houses on this site required careful argument. My design process demanded clear explanations and a sensitive, comprehensive programme, which could survive being debated by the planning committee.
The existing area offered little innovation besides that of vernacular variation over time. The houses draw on personal experience of the village as a whole. Although forward looking in technological, spatial and contextual responses, the buildings deliberately use the more familiar features of gable ends, pitched roofs and slate thus fusing contemporary elements with vernacular characteristics.