Robin Halford Architect

  • Portfolio
  • Survey
  • About
  • Technical
    • Technical – Houses
    • Technical – Flats / Mixed
    • Technical – Fabrication
  • Portfolio
  • Survey
  • About
  • Technical
    • Technical – Houses
    • Technical – Flats / Mixed
    • Technical – Fabrication

© 2026 Robin Halford Architect

Theme by Colormelon

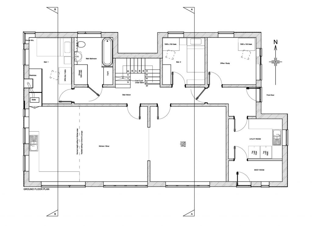
The Flowerpot

Duxford

My design for a new dwelling in Duxford included detailed pricing works.

© 2026 Robin Halford Architect

Theme by Colormelon