Robin Halford Architect

  • Portfolio
  • Survey
  • About
  • Technical
    • Technical – Houses
    • Technical – Flats / Mixed
    • Technical – Fabrication
  • Portfolio
  • Survey
  • About
  • Technical
    • Technical – Houses
    • Technical – Flats / Mixed
    • Technical – Fabrication

© 2026 Robin Halford Architect

Theme by Colormelon

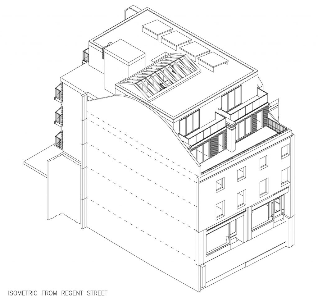
13 Apartments & Restaurant

Cambridge

As project architect at FRR Architects, I managed the design phase of this complex £3.5 million project. This included full consultant design team coordination (M&E, drainage etc), contract administration, detailed technical design and regular site visits.

The project featured facade retention, a new basement and the erection of 13 apartments with a restaurant on the ground floor. The project utilised off-site fabrication technology for the main steel frame requiring careful communication and interchange of 3D computer model data. I also made use of point cloud surveys and generated 3D coordinate setting out data directly from the 3D model.

© 2026 Robin Halford Architect

Theme by Colormelon