Robin Halford Architect

  • Portfolio
  • Survey
  • About
  • Technical
    • Technical – Houses
    • Technical – Flats / Mixed
    • Technical – Fabrication
  • Portfolio
  • Survey
  • About
  • Technical
    • Technical – Houses
    • Technical – Flats / Mixed
    • Technical – Fabrication

© 2025 Robin Halford Architect

Theme by Colormelon

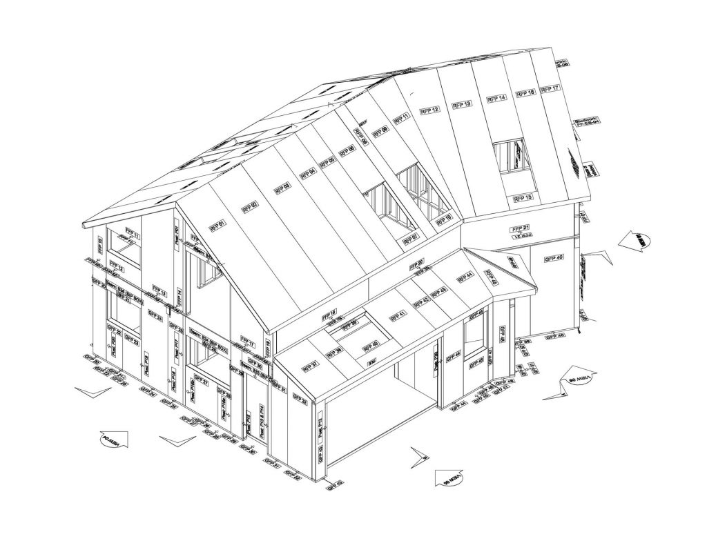
Primrose Hill

South Cambridgeshire

This project required me to deliver the full technical detailing package and offsite fabrication design for a luxury bespoke house.

Image Credit: Base Associates

© 2025 Robin Halford Architect

Theme by Colormelon