Robin Halford Architect

  • Portfolio
  • Survey
  • About
  • Technical
    • Technical – Houses
    • Technical – Flats / Mixed
    • Technical – Fabrication
  • Portfolio
  • Survey
  • About
  • Technical
    • Technical – Houses
    • Technical – Flats / Mixed
    • Technical – Fabrication

© 2026 Robin Halford Architect

Theme by Colormelon

Mobile Gallery

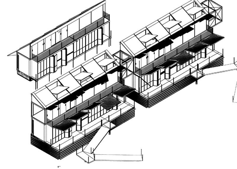
Morocco – Agadir, Marrakech, Rabat

Inspired by the technology of Apicella’s Mobile TSB Bank and Hong Kong Tourist Association Pavilion, this mobile art gallery, workshop and trading post transforms into three bus-sized vehicles capable of travelling long distances.

I imagined a scenario where the vehicles arrive on location as easily as a tourist bus and undertake their transformation over 12 hours. The broad range of internal spaces provide room for an installation artist and his sculptor colleagues to create, interact and trade in a transient fashion as they proceed across Morocco.

© 2026 Robin Halford Architect

Theme by Colormelon