Robin Halford Architect

  • Portfolio
  • Survey
  • About
  • Technical
    • Technical – Houses
    • Technical – Flats / Mixed
    • Technical – Fabrication
  • Portfolio
  • Survey
  • About
  • Technical
    • Technical – Houses
    • Technical – Flats / Mixed
    • Technical – Fabrication

© 2026 Robin Halford Architect

Theme by Colormelon

Long Road

South Cambridgeshire

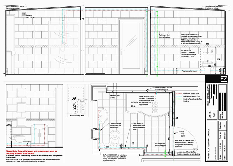
This new utility area and downstairs shower room reduces the client’s reliance upon the stairs and creates easy access for a wheelchair. My non-invasive design approach ensured that the clients remained in the property throughout the build.

I considered solutions that minimised site time and cost, culminating in the use of a structural insulated panel frame, a helical pile foundation system and a Corus roof. The resulting extension is economical, well lit and provides pleasant views of the garden to the west, whilst enhancing the existing property from outside.

Building Designed by Robin Halford

Building designed by Robin Halford

Building designed by Robin Halford

© 2026 Robin Halford Architect

Theme by Colormelon